方案展示
設計說明
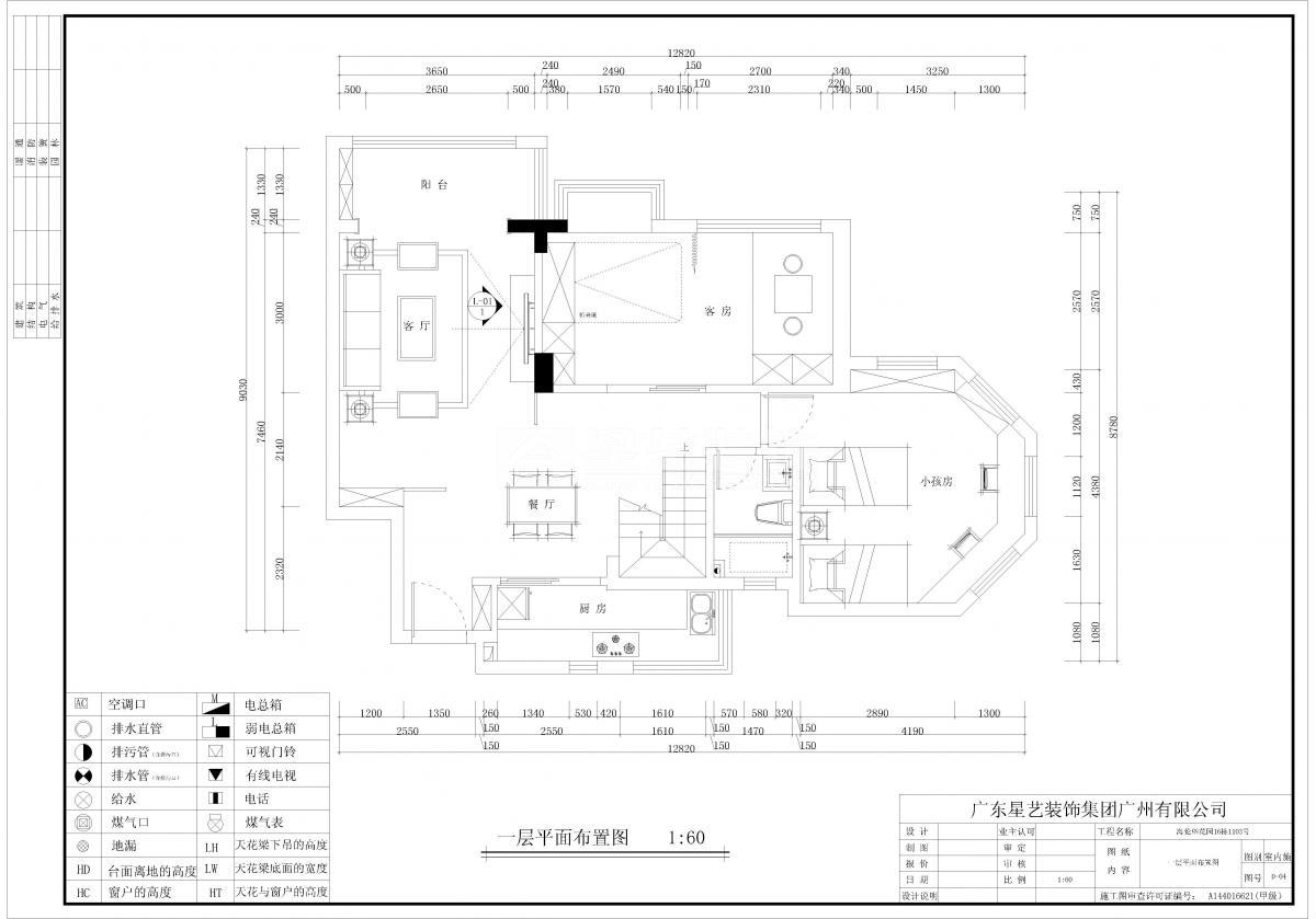
設計理念:空間中沒有多的色彩堆砌,清淺的灰和溫潤的木色是空間中的兩種主色調。客餐廳中的屏風、沙發邊幾、電視背景在色澤上一脈相承,灰色調的沉靜、素雅,反映在磚面,皮質,羊絨材質上所呈現的質感不同,前者彰顯的質樸與后者低調的時尚互揉合,將現代空間的美感重新定義,衍生出新的豐富的視覺效果。從空間區分來看,客餐廳屬開放式格局,而與書房臥室之間以溫潤的木質材料以及透明玻璃組合作為界定,賦予空間以柔和與通透之感.
[展開]
關注我們
分享到
微信

立即預約
在線咨詢
在線客服
公安部備案號 44010602004978號